モデルハウス

西山本モデルハウス

所在地 八尾市西山本町4丁目7番6号
電話 0120-678-334
営業時間 10:00〜17:00
定休日 水曜日
最寄駅 近鉄大阪線 河内山本駅 徒歩10分
近鉄八尾駅 徒歩17分
近隣環境 八尾市の中心街に近く徒歩圏内に、近鉄大阪線2駅・公共施設・総合病院・大型ショッピングセンター等、
生活施設の充実した便利な環境で快適な暮らしが実現できます
CONCEPT

心地良く暮らす、ひろびろLDKの家

柱や壁などの遮りがなく、心地よく広がるLDK
テクノストラクチャーの強さを活かした解放的な間取り

心地良く暮らす、ひろびろLDKの家
心地良く暮らす、ひろびろLDKの家

安心して暮らすために必要な「強さ」

全棟で行う「構造計算(許容応力度計算)」
最高ランクの「耐震等級3」で構造設計

心地よく暮らす「快適さ」

ZEH住宅基準の「断熱」
24時間換気システム

情報図

モデルハウス外観

外観

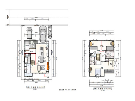
フロアプラン

フロアプラン

モデルハウスデータ

土地面積 126.53m²(38.27坪)
延床面積 121.10m²(36.63坪)

明るく解放的な間取り・たっぷり収納と手洗いのある玄関
ストレスフリーな洗面とランドリースペースのある設備空間
書斎及びウォークインクローゼットと洗面付きドレッサーを装備した主寝室
長期優良住宅・ZEH住宅基準の性能をクリアしています

構造計算書:耐震等級3相当・台風等級2相当・断熱等性能等級5相当・劣化対策等級3相当・維持管理対策等級3相当

外観 光触媒・セラミック・高耐候性コートの紫外線トリプルガード(色40年品質)
アルミ樹脂複層窓・全窓Low-E複層ガラス
フローリング ワックス不要・キッチン トリプルワイドIH・食器洗い乾燥機付
全自動おそうじトイレ・保温浴槽・暖房換気乾燥機付
24時間換気システム・エコキュート370L等々、主にパナソニック商品で装備しています

ACCESS

八尾市西山本町4丁目7番6号

周辺施設

河内山本駅

河内山本駅

河内山本駅

八尾市役所

河内山本駅

八尾市立西山本小学校

河内山本駅

関西スーパー
旭ヶ丘店

河内山本駅

近鉄八尾駅

河内山本駅

八尾市文化会館
プリズムホール

河内山本駅

八尾徳洲会総合病院

河内山本駅

イトーヨーカドー
アリオ八尾店

売却します!

高性能で快適に暮らせるモデルハウスを、家具付でお譲りします!!

ご来場予約

ご予約はお電話または下記予約フォームで承っております。

0120-678-334

受付時間 10:00~17:00(平日・土日・祝日)
定休日 水曜日

ご来場場所
ご来場日時
第一希望
第二希望
ご来場人数
お車でご来場
お名前
フリガナ
電話番号
メールアドレス
(半角英数字)
関心のあるシリーズ
ご相談事項
個人情報保護方針